

400-6171-355現今很多客戶對開坯的切頭切尾長度有明確的可追溯要求,然而由于手段限制,目前僅僅靠操作工肉眼檢測切斷,無法滿足客戶要求。為滿足用戶的要求,提高軋線剪切機切頭切尾的精度和可追溯性,擺脫過分依賴人的落后管理方式,可在開坯線的剪切機處各安裝一套切頭切尾長度自動測量系統。藍鵬測控測長系統通過工業相機實時采集現場圖像,通過系統自動計算,統計頭尾的長度,并記錄入庫,滿足用戶的需求。

設備組成及結構
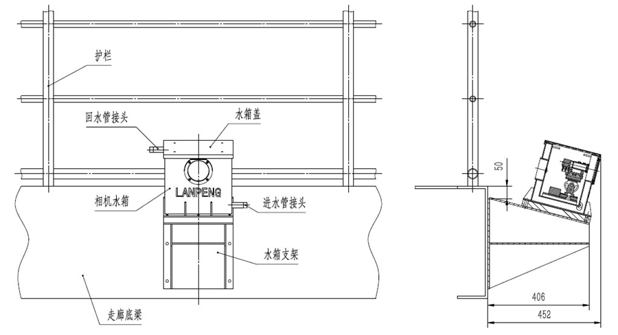
測長儀是采用工業相機和圖像處理方式測量鋼坯剪切斷長度的設備,主要包括測長儀和控制系統兩大部分。其中測長儀部分主要由工業相機、鏡頭、云臺、水箱和水箱支架等零部件組;控制部分主要由控制柜、工控機、顯示器、聲光報警器等組成。

測長儀安裝在軋線正對剪切機的二層走廊下部,控制系統安裝在控制室。測長儀的供電由控制系統控制,測長儀采集到的圖像信號通過網線傳輸到工控機進行處理、計算,計算結果直接在顯示器上顯示。當鋼坯剪切段的端部超過設定的剪切位置時,系統驅動聲光報警器報警提示。
設備安裝位置
測長儀安裝在二層走廊下方正對剪切機刃口前2m處,水箱支架與走廊底梁連接固定。測長儀相機的視野范圍覆蓋剪切機刃口前方(鋼坯行進防線)1m和后方5m的區域。

功能簡介
該測量系統采用非接觸性的工作模式,運行穩定,數據準確,抗干擾能力強,操作簡單方便,維護周期長,維護量少。
誤差小,響應時間小,并可對誤差范圍進行微調,以保證誤差盡可能小。
系統自動生成掃描光標,該光標實時檢測坯頭、坯尾位置,并且跟隨坯頭、坯尾移動,頭尾尺寸以尖端為端點。動態光標可對定尺實時跟蹤,不斷顯示坯頭位置。
操作工根據掃描光標與定尺線,通過移動輥道來進行定尺控制,當掃描光標位于定尺線范圍內,發出切割信號,操作工操作剪切,對于超出定尺線的操作進行報警提示。
發出切割信號的同時給系統一個信號,系統生成以時間為單位的文件,并且截取當時切割狀態的畫面和數據。上述文件統一存儲在“數據庫”里,文件以爐號加時間進行命名。
數據記錄長時間保存,可查閱對應的畫面和數據表,數據表可進行加密,可方便導出。
如果頭尾需要多次切割時,系統具備自動計算功能,生成剩余需切頭尾長度和光標,最后一次剪切時保存的數據為多次剪切總和數據。
在線測長儀既能實時在線檢測長度,將檢測數據進行存儲,還能將檢測數據傳輸給其他需求控制的設備,讓高質量生產變得簡單,為客戶提供軋制信息,讓客戶更加信賴。